Complies with international standards
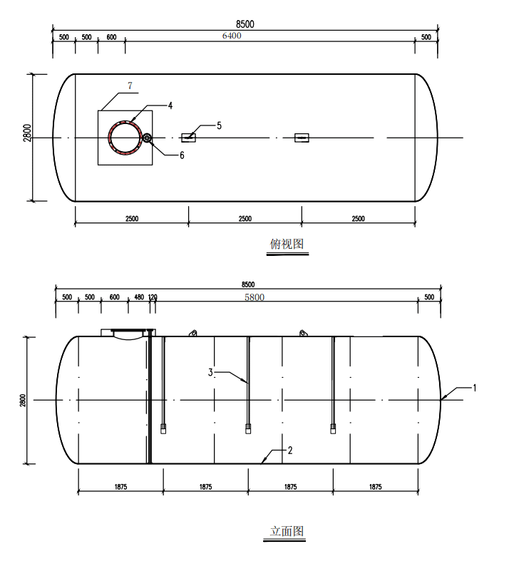
Design of SF Double-Wall Tanks
Design of SF Double-Wall Tanks
Category: horizontal oil tank design
We need to understand the following information.
I. Process and Medium Parameters
Medium Characteristics
- Medium name (e.g., crude oil, chemical solvents, acid-base solutions, etc.)
- Physical properties: Density, viscosity, flash point, boiling point, freezing point, vapor pressure
- Chemical properties: Corrosivity (pH value, corrosion rate), toxicity, flammability and explosiveness
- Temperature range: Storage temperature, maximum operating temperature,…
Get Best Price
Don’t see what you’re looking for? Let us help you. Give us a WhatsApp or send us a message.You can contact us by:
We need to understand the following information.
I. Process and Medium Parameters
Medium Characteristics
- Medium name (e.g., crude oil, chemical solvents, acid-base solutions, etc.)
- Physical properties: Density, viscosity, flash point, boiling point, freezing point, vapor pressure
- Chemical properties: Corrosivity (pH value, corrosion rate), toxicity, flammability and explosiveness
- Temperature range: Storage temperature, maximum operating temperature, minimum ambient temperature
Storage Requirements
- Design capacity (effective volume, total volume)
- Storage cycle (single filling volume, turnover frequency)
- Filling factor (usually ≤ 0.9 to prevent overflow due to thermal expansion and contraction)
- Whether heating/cooling is required for the medium (temperature control range)
II. Structural Design Parameters
Tank Body Dimensions
- Diameter (inner diameter/outer diameter), height (total height, effective liquid level height)
- Head form (ellipsoidal, dished, conical) and dimensions
- Wall thickness (inner layer, outer layer, interlayer)
Material Selection
- Inner layer material: Carbon steel, stainless steel, FRP (Fiberglass Reinforced Plastic)
- Outer layer material: Carbon steel, stainless steel, concrete (selected based on corrosion environment)
- Interlayer filling: Thermal insulation materials (polyurethane, rock wool), insulation layer thickness
Structural Details
- Flange, manhole, and nozzle dimensions and positions
- Floating roof/internal floating roof design (if applicable)
- Support structure (vertical/horizontal, saddle/skirt support)
III. Safety and Performance Parameters
Safety Standards
- Pressure rating (atmospheric pressure/low pressure/high pressure)
- Sealing grade (leak prevention, corrosion resistance)
- Explosion-proof rating (for flammable and explosive media)
- Seismic rating (determined based on installation environment)
Detection and Monitoring
- Interlayer leak detection system (e.g., level sensors, alarm devices)
- Anti-corrosion coating thickness and type
- Strength calculation parameters (allowable stress, safety factor)
IV. Regulatory and Environmental Parameters
Compliance Requirements
- Applicable standards (e.g., API 650, GB 50074, ASME VIII)
- Certification requirements (pressure vessel certification, anti-corrosion certification)
Environmental Conditions
- Installation location (above-ground/underground/indoor/outdoor)
- Soil conditions (soil corrosivity consideration for underground tanks)
- Meteorological conditions (wind speed, temperature, humidity, seismic intensity)
V. Other Auxiliary Data
- Transportation and installation requirements (weight, size limitations)
- Maintenance cycle and inspection space
- Emergency response measures (leakage emergency plan, fire protection facilities)
8000+
COMPLETED TANK PROJECTS
15+
Manufacturing experience
121000+
SQ FT FABRICATION SPACE
300+
EMPLOYEE OWNERS
More Projects
Do You Have A Question?
We are happy to answer any of your questions relating to our inventory, locations or the way we do business.
Looking for a quote?
We recommend you submit a request for quote document via our RFQ Form.
Request a quote for your next above ground storage tank project.












